İMAR PLANI TADİLATI ASKI TUTANAĞI
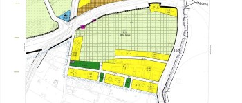
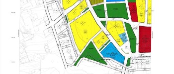
Yalova ili, Çınarcık İlçesi, Koru Belediye Meclisinin 11.07.2023 tarihli ve 34 sayılı kararı ile düzeltilerek onaylanan 1/5000 ölçekli Nazım İmar Planları , 1/1000 ölçekli uygulama imar planları ve dosyası 3194 sayılı İmar Kanununun 8-b maddesi gereği 14.07.2023 tarihinde eşzamanlı olarak Koru Belediyesi İlan Panosunda ve idaremizin koru.bel.tr internet adresinde askıya çıkartılmıştır. Ayrıca idaremiz sınırlarındaki Atakent, Cumhuriyet, Hürriyet (3 muhtarlık) mahalle muhtarlıklarına da planların nerede askıya çıkartıldığına dair bilgilendirme ilan metni askıya çıkarılmak üzere tebliği edilmiştir.14.07.2023
Planları ve plan açıklama raporunun orjinal halini linkten indirebilirsiniz. Bağlantı Linki: https://drive.google.com/file/d/1FG11jn4KVyJ96pxbTmWHCFi09PIdHw2A/view?usp=sharing

